CO-ESCLUSIVA - CITTÀ GIARDINO - 200M DAL MARE - VILLETTA ABBINATA CON SPAZI ESTERNI E POSTO AUTO
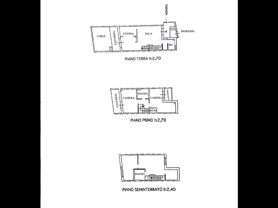
Proponiamo in vendita, villetta abbinata di recente costruzione, sviluppata su 3 livelli: Piano terra, Piano primo e Piano seminterrato.
Internamente si compone al Piano terra da: Ingresso, soggiorno, cucina abitabile, bagno, due terrazze e due resedi di cui una sul fronte ed una sul retro della casa con accesso dalla zona cucina.
Al Piano primo: Due Camere, entrambe con terrazza, un bagno con doccia/vasca ed accesso a soffitta.
Al piano Seminterrato: Ampio vano pluriuso a seconda delle necessità, stanza con letto matrimoniale, zona lavanderia e bagno con doccia; seminterrato finestrato e luminoso.
A corredo posto auto di proprietà.
Ottime finiture, come pavimenti in marmo pregiato e parquet, bagni di prestigio e impiantistica particolarmente accurata.
Da non perdere!
APE: Classe E, EPgl,nren 107,82
Per Informazioni e visite contattare David:
Immobiliare Ville Case Versilia
Tel: 328 5637864
info@villecaseversilia.it
www.villecaseversilia.it
